Model: LN10x10.
Trọng lượng: 70-120Kg.
Kích thước: Tùy chọn.
Chất liệu: Thép, Inox 304.
Thời gian: 3-5 ngày.
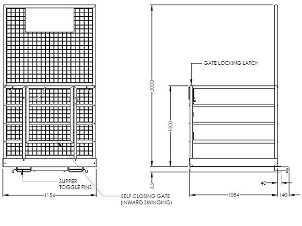
Lồng đứng xe nâng hàng được thiết kế để sử dụng nâng người lên làm việc ở độ cao. Thiết kế của nó tuân thủ nhiều yêu cầu tiêu chuẩn an toàn để làm việc ở độ cao và được đánh giá cho tải trọng tối đa 250kg (khoảng hai công nhân và thiết bị của họ). Cài dây dây nịt giữ cho công nhân không rơi ra khỏi lồng.
√ Tấm sàn chống trượt.
√ Lan can đôi.
√ Dây buộc điểm.
√ Tấm đá.
√ Ổ cắm ngã ba với chân giữ .
√ Lưới bảo vệ cột buồm.
√ Cổng bẫy trọng lực.
√ Trọng lượng 300Kg hoặc hai người với các công cụ .
√ Màu sắc để đặt hàng( tùy chọn).

Lồng đứng xe nâng hàng trong kho hàng hóa
Kích thước
√ Kích thước tiêu chuẩn là
√ 900x900mm
√ 1200x1200mm
√ 1800x1200mm
√ 2500x1200mm
√ Kích thước và thông số kỹ thuật khác có sẵn để đặt hàng.

Bản vẽ lồng đứng xe nâng hàng
√ Thay đổi đèn trong nhà kho.
√ Truy cập vào tầng lửng.
√ Đảm bảo tải trọng cao.
√ Bảo trì / sửa chữa tài sản.
√ Tỉa cây.

Người vận hành đứng trong lồng nâng sửa bóng đèn trên cao
Người lái xe cần có trình độ và kinh nghiệm. Lồng nâng an toàn làm việc nên được giới hạn cho hai người và các công cụ của họ không vượt quá tổng cộng 300 kg. khi làm việc nên được gắn bởi một dây an toàn cho nền tảng. Một giám sát viên phải có sẵn trong suốt thời gian của thủ tục công việc đang được sử dụng.
√ Lồng thép xe nâng cần được gắn chặt vào càng nâng.
√ Chỉ người dùng và người vận hành đủ điều kiện mới được sử dụng.
√ Người dùng cần đeo dây an toàn một cách an toàn gắn liền với lồng nâng hàng.
√ Không có chuyển động ngang (tiến / lùi / đi ngang) trong khi có một người đứng trong lồng.
√ Kích thước sàn không thể vượt quá 2 lần khoảng cách trung tâm tải.
Khi mua mặt hàng này, khách hàng phải tuân thủ tất cả các quy định và tiêu chuẩn hiện hành của nhà cung cấp. Hotline: 0987 98 13 15